
Zu unserem Projekt "Parkstadt-Center" finden
Sie
GU-Ausschreibungsunterlagen im Downloadbereich*. |
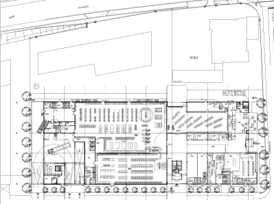
Das zukünftige Parkstadt-Center
in München-Schwabing, welches entlang
der Wilhelm-Wagenfeld und Alfred-Arndt-Straße
südlich der Domagkstraße entstehen wird,
besteht aus drei kubischen Gebäuden mit unterschiedlichen
Oberflächen.
Der größte der drei Baukörper, der
einen Discountmarkt und einen Verbrauchermarkt im Erdgeschoss
sowie großzügige Büroräume im Obergeschoss
beherbergen wird, bekommt eine durchschneidende Gussglas-Fassade.
Das vordere Büro- und Ärztehaus wird eine
dunkle Basalt-Naturstein-Fassade haben und das dritte
Gebäude, in dem unter anderem ein Damen-Fitness
sein wird, bekommt eine glänzende, weitgehend geschlossene
Metallverkleidung.
Verbunden sind die Komplexe im Erdgeschoss durch eine
gemeinsame Passage, welcher diverse Fachmärkte,
Shops sowie Freizeit- und Dienstleistungsflächen
angegliedert sind.
Das Projekt sieht eine zweigeschossige Tiefgarage vor,
in welcher je Geschoss ca. 195 PKW-Stellplätze
untergebracht sind.
Die Eckdaten des Projekts
|